Ayuntamiento de A Coruña

Ayuntamiento de A Coruña

Cuándo:

15 de enero de 2022

O Concello da Coruña habilitará 87 novas hortas urbanas no parque Adolfo Suárez, revitalizando os espazos públicos do Agra do Orzán

A execución dos traballos, cofinanciados con Fondos FEDER, durará seis meses e implicará a intervención en case 5.000 metros cadrados de terreo

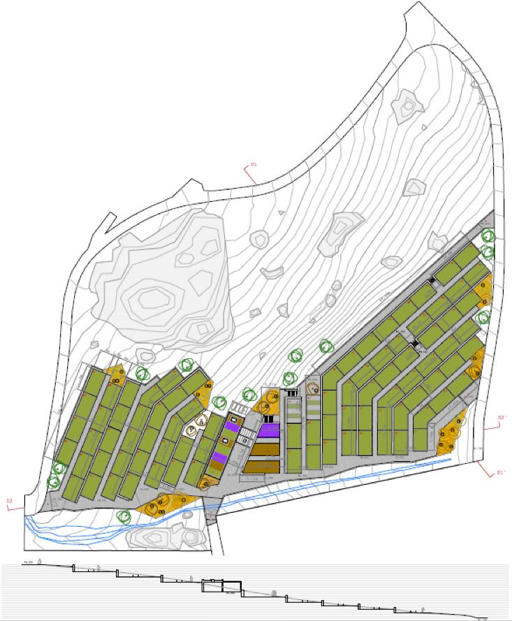
O Concello reforza a súa aposta pola recuperación e rehabilitación dos espazos públicos do Agra do Orzán, onde se executarán traballos para a posta en marcha de novas hortas urbanas no parque Adolfo Suárez, un proxecto que se executará nun prazo de seis meses e que vén de ser adxudicado á empresa Arce Jardinería.

O Goberno de Inés Rey levará a cabo un investimento de 305.966,20 euros, cofinanciados con Fondos FEDER, para intervir nunha superficie de 4.478,22 metros cadrados nos terreos de acceso ao parque Adolfo Suárez. En total, crearanse 87 parcelas, de 28 metros cadrados de superficie por unidade, adaptadas para as usuarias e usuarios con mobilidade reducida.

O proxecto das hortas urbanas en Adolfo Suárez, impulsado pola Concellaría de Medio Ambiente, pretende unha implantación adaptada ao terreo, sacando o máximo proveito da pendente coa orientación que ofrece, conseguindo un ángulo solar adecuado e a protección dos ventos que chegan do norte. Para isto, levarase a cabo unha intervención mínima que reconfigurará a xeometría da parcela. 

A vexetación xoga un papel fundamental na intervención, xa que, xunto aos muros de pedra que se disporán no circuíto de hortas urbanas de Adolfo Suárez, impulsará a diversidade biolóxica do parque ao atraer insectos, paxaros e máis fauna útil.

Alumado nos percorridos principais e tomas de auga por cada dúas parcelas

Nas hortas urbanas do parque Adolfo Suárez instalarase alumado nos percorridos de acceso e paso principais, así como tomas de auga compartidas para cada dúas unidades de terreo.

O proxecto contempla, ademais, a instalación dunha edificación auxiliar de 91 metros cadrados para uso veciñal e para almacenar o material comunitario, os compartimentos para obxectos persoais e o aseo.

O Concello fomantará tamén a autoxestión enerxética con fontes renovables, instalando un sistema de aproveitamento de enerxía solar fotovoltaica dimensionado para abastecer as cargas da edificación auxiliar, habilitado para xerar 4,8 kWh por día no invierno, mentres que no verán a produción ascendería a 11,2 kWh por día. Para almacenar a electricidade, colocaranse baterías cunha capacidade de 13,2 kWh de acumulación total.

Ademais, instalarase unha pía para o lavado de calzado, ferramentas e verduras; un composteiro común, un xardín de plantas aromáticas e farase a reserva do espazo preciso para un posible invernadoiro de cara ao seu uso como sementeiro colectivo.

Documentos:

Proxecto das hortas urbanas na Agra do Orzán (151 KB)

Localización das hortas urbanas na Agra do Orzán (59 KB)

Categorías de la noticia

¿Qué te parece esta sección?

-101-101-101

¡Tienes un navegador demasiado antiguo!

Lo sentimos pero tu navegador es muy antiguo para poder mostrar esta página. Debes de actualizarlo o usar un navegador compatible. Hemos optimizado esta web para Google Chrome, Mozilla Firefox, Opera, Safari y Microsoft Edge. Instalar ahora un navegador compatible

Iniciar sesión